スタッフBLOG
鷹子078
最新記事
»
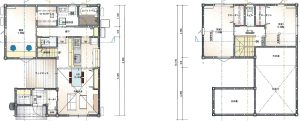
お家づくりのイメージが広がります♬【東温市志津川・松山市山越町】(松山店)
»
年末年始休業のお知らせ【2025/12/27~2026/1/2】(松山店)
»
担当さんが推しです!【12/6~12/8伊予市米湊・東温市志津川モデルハウス見学会開催】(松山店)
»
最終開催♬西垣生モデルハウス見学会【11/8~11/10】(松山店)
»
インナーガレージ&ウッドデッキがある平屋【10/11~10/13見学会開催】(松山店)
今治店
松山店
松山本店
西条店
(東予オフィス)
マサキデッキ店
東広島店
福山北店
高知店
徳島店
TOP
見学会イベント情報
見学会に予約する
会社紹介
商品紹介
分譲住宅販売
施工事例
平屋の暮らし
安さの秘密
株式会社アットハウジング
愛媛県松山市平井町甲2382番地
TEL:089-976-7255