New!2/21松山市西長戸3LDKモデル(松山店)

松山市西長戸に新しい平屋モデルハウス建築中!
★2026/2/21グランドオープン★
オーナー様を募集しています!
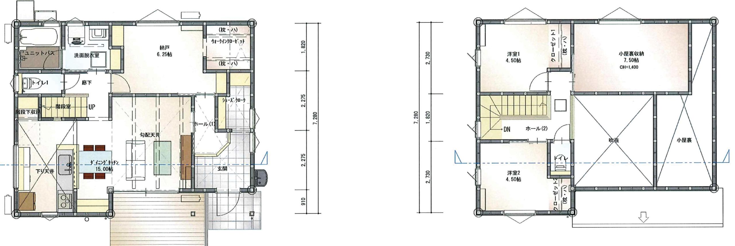
3LDK 35.31坪
勾配天井で明るく心地良いLDK!
将来は1階だけで暮らせる1.5階建て
★広々玄関でスッキリ片付く
★ダイニングそばにデスクスペース
PCや家事、お子様の勉強コーナーにぴったり♪
★天気や花粉の心配がない室内物干し
★各所に大充実の収納!
★大好評!コスパパック仕様!
★最新商品やトレンドカラーを取り入れたプロのコーディネート
・太陽光発電システム6.6KW
・食器洗い乾燥機
・浴室乾燥機
・制震ダンパーMIRAIE搭載
見学会開催日以外でも、ご予約いただければ見学可能です!
お気軽にお問い合わせください(^^)
アットハウジング松山店
★2026/2/21グランドオープン★
オーナー様を募集しています!
3LDK 35.31坪
勾配天井で明るく心地良いLDK!
将来は1階だけで暮らせる1.5階建て
★広々玄関でスッキリ片付く
★ダイニングそばにデスクスペース
PCや家事、お子様の勉強コーナーにぴったり♪
★天気や花粉の心配がない室内物干し
★各所に大充実の収納!
★大好評!コスパパック仕様!
★最新商品やトレンドカラーを取り入れたプロのコーディネート
・太陽光発電システム6.6KW
・食器洗い乾燥機
・浴室乾燥機
・制震ダンパーMIRAIE搭載
見学会開催日以外でも、ご予約いただければ見学可能です!
お気軽にお問い合わせください(^^)
アットハウジング松山店





























